四街道市みそら1丁目 第11 新築一戸建て 全2棟 千葉県四街道市みそら1丁目|2,488万円の新築一戸建て|分譲住宅や新築物件|MEマイホーム計画京葉株式会社

定休日:水曜 営業時間:9:00~

0120-000-973

会員登録
TOPページ >
物件検索 >
新築一戸建て
>
四街道市
>
JR総武本線
>
四街道市みそら1丁目 第11 新築一戸建て 全2棟

新築一戸建て

四街道市みそら1丁目 第11 新築一戸建て 全2棟
お気に入り
価格 2,488万円 ローンシミュレーション
所在地 千葉県四街道市みそら1丁目
この地域周辺の物件を見る
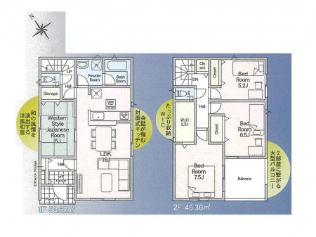
土地面積 135.4m² (40.96坪) 建物面積 95.98u
築年月 2026年5月築 間取り 4LDK (-)
交通
JR総武本線 四街道 旭小学校 バス16分 停歩6分
JR総武本線 四街道 徒歩45分
ここがおすすめ

-


  • 現地外観写真 溢れる陽光でご家族の笑顔も輝く
  •  区画図
  • 現地外観写真 たっぷりの陽光と心地よい風が舞い込む住まい
  • 現地外観写真 見通しの良さとともに、街並みに開放感を与えてくれます。
  •  間取り
  • 周辺環境 駅 3600m 四街道駅
  • 周辺環境 小学校 311m 四街道市立旭小学校
  • 周辺環境 中学校 350m 四街道市立旭中学校
  • 周辺環境 幼稚園・保育園 1200m みそら幼稚園
  • 周辺環境 病院 600m 陽光医院
お問い合わせ、資料請求、見学のお申し込みはこちらから

電話をかける(携帯・PHS可)
0120-000-973
「ホームページを見た」とお伝え下さい。

お問い合わせ番号をお伝えください
RHS-991004744

内見予約
お問合せ

セールスポイント

特徴
  • フローリング
  • システムキッチン
  • カウンターキッチン
  • シャンプードレッサー
  • シャワー
  • シャワートイレ
  • 浴室乾燥機
  • コンロ三口
  • Wクローゼット
  • 床下収納
  • バルコニー
  • TVドアホン
  • 都市ガス
セールスコメント
 


物件概要

採光面 - 構造/階数 木造/地上2階建
建ぺい率 50(%) 容積率 100(%)
駐車場 現況/引渡し -/2026年6月上旬
土地権利 所有権 私道負担面積 -

接道状況 接道: 南西 9.6m 公道 道路幅: 11.9m 用途地域
第一種低層住居専用地域
セットバック なし 法令上の制限 -
地目 宅地 地勢
建築確認番号 第25UDI1W建13068号 都市計画 市街化区域
取引態様 仲介
情報更新日 2026年05月14日 次回更新日 2026年05月28日
※各種情報と差異がある場合は現況優先となります

学区情報

小学校区 四街道市立旭小学校
(千葉県四街道市)
この学区の他の物件を見る
中学校区 旭中学校
(千葉県四街道市)
この学区の他の物件を見る
※物件情報の学区情報について
当サイト物件情報に記載されております通学区域(学区)情報は、国土数値情報ダウンロードサービスが提供する小学校区データ【2016年度】及び中学校区データ【2016年度】を元に加工したものですので、記載情報が現在の学区域と異なる場合がございます。
国土数値情報ダウンロードサービスのWEBサイト上で記述通り、データは必ずしも正確とは言えません。また、通学区域(学区)は毎年見直しの対象となりますので、そちらを踏まえ学区情報は参考としてご活用下さい。
お問い合わせ、資料請求、見学のお申し込みはこちらから

電話をかける(携帯・PHS可)
0120-000-973
「ホームページを見た」とお伝え下さい。

お問い合わせ番号をお伝えください
RHS-991004744

内見予約
お問合せ

この物件でローンシミュレーションする

価格 万円
年利率
ボーナス払い 返済年数
頭金 直接入力する 万円

毎月のご返済額

ボーナス(×年2回)

物件価格

2,488万円
※返済金額はあくまでも目安です。

こちらの物件は複数区画の分譲地・他にも販売中のマンションがあります。

四街道市みそら1丁目
2488万円〜2588万円

電話でお問い合わせ
MEマイホーム計画京葉株式会社

電話をかける

0120-000-973

※「ホームページを見た」とお伝えください。
お問い合わせ番号をお伝えください
RHS-991004744

お問い合わせ

お問い合わせ内容
お問合せ内容必須
【備考欄】
詳細な見学ご希望時間、ご質問、ご希望条件などがございましたらお聞かせ下さい。
(2000文字以内)
お客様情報
お名前必須
連絡先必須 メールアドレス

※ご記入いただいたメールアドレス宛てに、お問合せ内容の確認メールをお送りいたします。
※Yahoo!メールなどのフリーメールをご利用の場合、迷惑メールフォルダに入る場合があります。
 迷惑メールのフォルダ・設定等をご確認下さい。
電話番号
FAX(任意)
※ご入力いただいたお客さまの個人情報は、「個人情報の取扱いについて」に基づき適正に取り扱います。必ずお読みになり、同意の上お問い合わせください。

お気軽にお問い合わせください

0120-000-973
物件番号 RHS-991004744
※「ホームページを見た」
とお伝え下さい。