グラファーレ 松戸市千駄堀 6期 新築一戸建て 全1棟 千葉県松戸市千駄堀 |4,290万円の新築一戸建て|分譲住宅や新築物件|MEマイホーム計画京葉株式会社

定休日:水曜 営業時間:9:00~

0120-000-973

会員登録
TOPページ >
物件検索 >
新築一戸建て
>
松戸市
>
新京成電鉄
>
グラファーレ 松戸市千駄堀 6期 新築一戸建て 全1棟

新築一戸建て

グラファーレ 松戸市千駄堀 6期 新築一戸建て 全1棟
お気に入り
価格 4,290万円 ローンシミュレーション
所在地 千葉県松戸市千駄堀
この地域周辺の物件を見る
土地面積 115.2m² (34.85坪) 建物面積 100.6u
築年月 2026年3月築 間取り 4LDK (-)
交通
新京成電鉄 松戸新田 徒歩17分
新京成電鉄 みのり台 徒歩18分
ここがおすすめ

-


  • 現地外観写真 外観〜Exterior〜 堂々たる趣ながら、主張し過ぎずどこか余裕を感じさせるシャープなフォルムで佇む邸宅は、晴天の空と照らし合わせる事で、本来あるべき完成形の姿を見せてくれます。
  •  区画図〜Plot map〜 図面と異なる場合は現況を優先致します。
  • 現地外観写真 外観〜Exterior〜 首都圏で憧れのスローライフ♪緑に囲まれた土地は都会の喧騒を忘れられそう。四季を通じて自然と触れ合えるスポットが周辺には盛りだくさん!住みたくなる家。暮らしたい町。
  • 現地外観写真 外観〜Exterior〜 前面道路は閑静な住宅地をはしる車通りの少ない道路。駐車の出し入れもらくらくです!ご不明点・現地見学のご希望は、お気軽にお問い合わせください!
  • リビング 内装〜Living〜 家族の会話や笑顔が行き交うリビングです。子供が走ってる姿を見ながら、大きなソファやダイニングテーブルでゆったり食事をしたりくつろぎたい♪そんな夢が叶えられる空間です!※家具はCGです
  • リビング 内装〜Living〜 リビングに階段のある間取りです♪家族のコミュニケーションがスムーズに取れますね♪ゆとりある暮らしと心地よい住環境が紡ぐ贅沢な時間をご家族みんなでお過ごし下さい。
  • その他内観 内装〜Living〜 飽きの来ないシンプルでおしゃれなLDK。大きな窓から日差しが差し込むので室内も明るく、家族の憩いの場としてピッタリです。開放感と日当たりの良さを是非ご覧ください!
  • キッチン 内装〜Kitchen〜 自然光が入る窓のあるキッチン☆毎日使う場所だからこそ、使い勝手を考慮しました。ゆったりとしたキッチンコーナーは質感豊かな仕上がりとなっております。
  • キッチン 内装〜Kitchen〜  リビングが見渡せるカウンターキッチン。  料理をしながら家族とコミュニケーションをとれるだけでなく、大きな開放感も得ることができます。  お子様の成長も感じることができますね!
  • 洗面台・洗面所 内装〜Dressing Room〜  清潔感溢れる色合いで統一されていると、スッキリと整った印象をうけます。  鏡の裏にはたっぷりと収納スペースを標準装備!  水廻りは、シンプルかつ機能性を重視して。
  • その他 清潔感のある快適空間です。毎日の身支度も気持ち良くお使い頂けます。
  • 浴室 内装〜Bath Room〜 落ち着いた雰囲気の浴室で明日に向けてリフレッシュ。浴室乾燥機能も付いているので隣の洗濯機置き場で洗い上がった洗濯物を、雨の日も天気を気にせず乾燥させることも可能です。
  • その他内観 内装〜Bed Room〜  「今日も一日お疲れ様」とご夫婦でゆったりくつろげる寝室。  毎日の家事やお仕事に疲れた日はフカフカのベットで癒されてください。本棚をおいても快適な広さが自慢♪
  • 寝室 内装〜Bed Room〜 部屋数が多いのが戸建てのメリットです。ご家族が増えたことで手狭に感じていた住まいも戸建てでは各居室プライバシーを保つことができます。住まいにゆとりが生まれ心もリラックスできます♪
  • 子供部屋 内装〜Bed Room〜 子供部屋はお子様にとって大変重な役割があります。子供一人で過ごす空間を与えることで、宿題や勉強時間も自然と増えまた自ら部屋の片付けや掃除なども促すことに繋がります。
  • 玄関 内装〜Entrance〜 下駄箱ミラー付なので、お出かけ前の身だしなみチェックに◎♪玄関はお客様をお出迎えする一番最初の場所、帰ってくる時に入る最初の場所。そんな場所だからこそ、より良い空間に…♪
  • バルコニー 内装〜Balcony〜 南向きのバルコニーの前には雲以外に太陽を遮るものがありません。お洗濯物も乾きやすく、何より明るく気持ちのいい光が入ってきます。使いやすく開放的なバルコニーです♪
  • その他 内装〜Walk-in Closet〜 必要なものやコーディネートを一覧して確認でき、身支度や準備が短時間で済むウォークインクローゼットを設置しました。家の中をすっきりとさせる便利な収納スペースです。
  • トイレ 内装〜Toilet〜 綺麗・スッキリ・快適なウォシュレット付トイレでくつろげる空間です。トイレは毎日使わざるを得ないもの。いつも清潔を保ちたいですね。トイレが2ヶ所あるので朝の混雑時に便利です!
  • その他内観 使いやすさを優先したスライド式収納タイプ!
  • その他内観 三面鏡の裏に、化粧品や衛生用品などを収納可能。洗面台をすっきりと保ちます!
  • その他内観 玄関ホール収納です。掃除道具やお出かけ用グッズの収納に便利です。
  • その他内観 たっぷり収納できるシューズボックスで家族全員の靴も、玄関すっきり。
  • その他内観 浴室涼風暖房換気乾燥機付きなので、お天気が悪い日のお洗濯も安心!
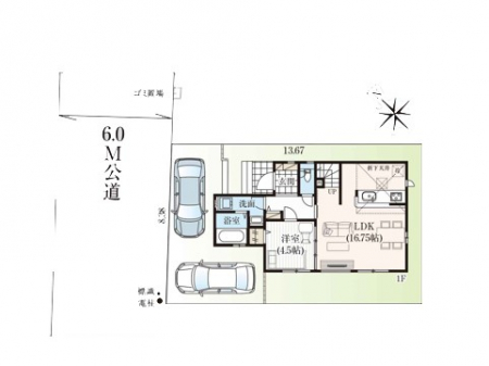
  •  間取り〜Floor plan〜 図面と異なる場合は現況を優先致します。
  • 周辺環境 駅 1100m 松戸新田駅
  • 周辺環境 小学校 500m 松戸市立寒風台小学校
  • 周辺環境 中学校 400m 松戸市立第六中学校
  • 周辺環境 幼稚園・保育園 1400m 松戸みどり幼稚園
  • 周辺環境 病院 900m 松戸市立総合医療センター
お問い合わせ、資料請求、見学のお申し込みはこちらから

電話をかける(携帯・PHS可)
0120-000-973
「ホームページを見た」とお伝え下さい。

お問い合わせ番号をお伝えください
RHS-991005525

内見予約
お問合せ

セールスポイント

特徴
  • フローリング
  • システムキッチン
  • カウンターキッチン
  • 追い焚き
  • シャワー
  • バス・トイレ別
  • シャワートイレ
  • 室内洗濯機置場
  • 浴室乾燥機
  • コンロ二口
  • コンロ三口
  • Wクローゼット
  • 床下収納
  • バルコニー
  • TVドアホン
  • 都市ガス
  • カースペース2台以上
セールスコメント
 


物件概要

採光面 - 構造/階数 木造/地上2階建
建ぺい率 50(%) 容積率 100(%)
駐車場 現況/引渡し 空家/即時
土地権利 所有権 私道負担面積 -

接道状況 接道: 北西 公道 道路幅: 6m 用途地域
第一種低層住居専用地域
セットバック なし 法令上の制限 -
地目 宅地 地勢
建築確認番号 第HPA-25-08392-1号 都市計画 市街化区域
取引態様 仲介
情報更新日 2026年05月14日 次回更新日 2026年05月28日
※各種情報と差異がある場合は現況優先となります

学区情報

小学校区
()
中学校区
()
※物件情報の学区情報について
当サイト物件情報に記載されております通学区域(学区)情報は、国土数値情報ダウンロードサービスが提供する小学校区データ【2016年度】及び中学校区データ【2016年度】を元に加工したものですので、記載情報が現在の学区域と異なる場合がございます。
国土数値情報ダウンロードサービスのWEBサイト上で記述通り、データは必ずしも正確とは言えません。また、通学区域(学区)は毎年見直しの対象となりますので、そちらを踏まえ学区情報は参考としてご活用下さい。
お問い合わせ、資料請求、見学のお申し込みはこちらから

電話をかける(携帯・PHS可)
0120-000-973
「ホームページを見た」とお伝え下さい。

お問い合わせ番号をお伝えください
RHS-991005525

内見予約
お問合せ

この物件でローンシミュレーションする

価格 万円
年利率
ボーナス払い 返済年数
頭金 直接入力する 万円

毎月のご返済額

ボーナス(×年2回)

物件価格

4,290万円
※返済金額はあくまでも目安です。

電話でお問い合わせ
MEマイホーム計画京葉株式会社

電話をかける

0120-000-973

※「ホームページを見た」とお伝えください。
お問い合わせ番号をお伝えください
RHS-991005525

お問い合わせ

お問い合わせ内容
お問合せ内容必須
【備考欄】
詳細な見学ご希望時間、ご質問、ご希望条件などがございましたらお聞かせ下さい。
(2000文字以内)
お客様情報
お名前必須
連絡先必須 メールアドレス

※ご記入いただいたメールアドレス宛てに、お問合せ内容の確認メールをお送りいたします。
※Yahoo!メールなどのフリーメールをご利用の場合、迷惑メールフォルダに入る場合があります。
 迷惑メールのフォルダ・設定等をご確認下さい。
電話番号
FAX(任意)
※ご入力いただいたお客さまの個人情報は、「個人情報の取扱いについて」に基づき適正に取り扱います。必ずお読みになり、同意の上お問い合わせください。

お気軽にお問い合わせください

0120-000-973
物件番号 RHS-991005525
※「ホームページを見た」
とお伝え下さい。