江戸川区南篠崎町1丁目 新築一戸建て 全8棟 東京都江戸川区南篠崎町1丁目|7,580万円の新築一戸建て|分譲住宅や新築物件|MEマイホーム計画京葉株式会社

定休日:水曜 営業時間:9:00~

0120-000-973

会員登録
TOPページ >
物件検索 >
新築一戸建て
>
江戸川区
>
都営新宿線
>
江戸川区南篠崎町1丁目 新築一戸建て 全8棟

新築一戸建て

江戸川区南篠崎町1丁目 新築一戸建て 全8棟
お気に入り
価格 7,580万円 ローンシミュレーション
所在地 東京都江戸川区南篠崎町1丁目
この地域周辺の物件を見る
土地面積 95.3m² (28.83坪) 建物面積 154.84u
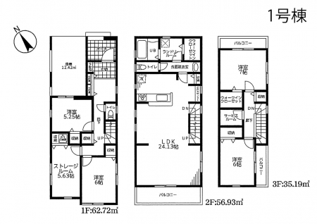
築年月 2026年5月築 間取り 4SLDK (-)
交通
都営新宿線 瑞江 王子マテリア バス6分 停歩5分
都営新宿線 篠崎 徒歩18分
ここがおすすめ

-


  • 現地外観写真 溢れる陽光でご家族の笑顔も輝く
  •  区画図
  • 現地外観写真 たっぷりの陽光と心地よい風が舞い込む住まい
  • 現地外観写真 ここから始まる新生活を応援いたします
  •  間取り
  • 周辺環境 駅 1280m 東京都交通局都営地下鉄・新宿線 瑞江駅
  • 周辺環境 小学校 650m 鎌田小学校
  • 周辺環境 中学校 900m 江戸川区立瑞江第三中学校
  • 周辺環境 幼稚園・保育園 500m 暁幼稚園
  • 周辺環境 病院 400m 江戸川共済病院
お問い合わせ、資料請求、見学のお申し込みはこちらから

電話をかける(携帯・PHS可)
0120-000-973
「ホームページを見た」とお伝え下さい。

お問い合わせ番号をお伝えください
RHS-991000480

内見予約
お問合せ

セールスポイント

特徴
  • フローリング
  • システムキッチン
  • シャンプードレッサー
  • バス・トイレ別
  • シャワートイレ
  • 室内洗濯機置場
  • 浴室乾燥機
  • ガスコンロ
  • コンロ三口
  • Wクローゼット
  • 床下収納
  • バルコニー
  • TVドアホン
  • 都市ガス
セールスコメント
 


物件概要

採光面 - 構造/階数 木造/地上3階建
建ぺい率 60(%) 容積率 200(%)
駐車場 現況/引渡し -/2026年6月下旬
土地権利 所有権 私道負担面積 -

接道状況 接道: 北東 公道 道路幅: 8m 用途地域
第一種中高層住居専用地域
セットバック なし 法令上の制限 -
地目 宅地 地勢 平坦
建築確認番号 第25UDI1W建11643号 都市計画 市街化区域
取引態様 仲介
情報更新日 2026年04月17日 次回更新日 2026年05月01日
※各種情報と差異がある場合は現況優先となります

学区情報

小学校区
()
中学校区
()
※物件情報の学区情報について
当サイト物件情報に記載されております通学区域(学区)情報は、国土数値情報ダウンロードサービスが提供する小学校区データ【2016年度】及び中学校区データ【2016年度】を元に加工したものですので、記載情報が現在の学区域と異なる場合がございます。
国土数値情報ダウンロードサービスのWEBサイト上で記述通り、データは必ずしも正確とは言えません。また、通学区域(学区)は毎年見直しの対象となりますので、そちらを踏まえ学区情報は参考としてご活用下さい。
お問い合わせ、資料請求、見学のお申し込みはこちらから

電話をかける(携帯・PHS可)
0120-000-973
「ホームページを見た」とお伝え下さい。

お問い合わせ番号をお伝えください
RHS-991000480

内見予約
お問合せ

この物件でローンシミュレーションする

価格 万円
年利率
ボーナス払い 返済年数
頭金 直接入力する 万円

毎月のご返済額

ボーナス(×年2回)

物件価格

7,580万円
※返済金額はあくまでも目安です。

こちらの物件は複数区画の分譲地・他にも販売中のマンションがあります。

江戸川区南篠崎町1丁目
7380万円〜7580万円

電話でお問い合わせ
MEマイホーム計画京葉株式会社

電話をかける

0120-000-973

※「ホームページを見た」とお伝えください。
お問い合わせ番号をお伝えください
RHS-991000480

お問い合わせ

お問い合わせ内容
お問合せ内容必須
【備考欄】
詳細な見学ご希望時間、ご質問、ご希望条件などがございましたらお聞かせ下さい。
(2000文字以内)
お客様情報
お名前必須
連絡先必須 メールアドレス

※ご記入いただいたメールアドレス宛てに、お問合せ内容の確認メールをお送りいたします。
※Yahoo!メールなどのフリーメールをご利用の場合、迷惑メールフォルダに入る場合があります。
 迷惑メールのフォルダ・設定等をご確認下さい。
電話番号
FAX(任意)
※ご入力いただいたお客さまの個人情報は、「個人情報の取扱いについて」に基づき適正に取り扱います。必ずお読みになり、同意の上お問い合わせください。

お気軽にお問い合わせください

0120-000-973
物件番号 RHS-991000480
※「ホームページを見た」
とお伝え下さい。