袖ケ浦市今井3丁目 6期 新築一戸建て 全3棟 千葉県袖ケ浦市今井3丁目|3,680万円の新築一戸建て|分譲住宅や新築物件|MEマイホーム計画京葉株式会社

定休日:水曜 営業時間:9:00~

0120-000-973

会員登録
TOPページ >
物件検索 >
新築一戸建て
>
袖ケ浦市
>
JR内房線
>
袖ケ浦市今井3丁目 6期 新築一戸建て 全3棟

新築一戸建て

袖ケ浦市今井3丁目 6期 新築一戸建て 全3棟
お気に入り
価格 3,680万円 ローンシミュレーション
所在地 千葉県袖ケ浦市今井3丁目
この地域周辺の物件を見る
土地面積 131.27m² (39.71坪) 建物面積 107.64u
築年月 2025年11月築 間取り 3LDK (-)
交通
JR内房線 長浦 徒歩34分
ここがおすすめ

-


  • 現地外観写真 たっぷりの陽光と心地よい風が舞い込む住まい
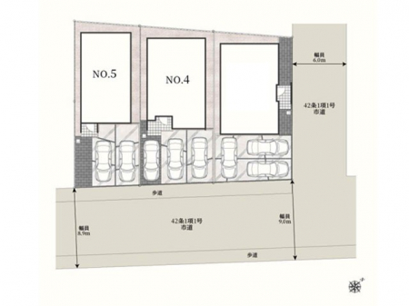
  •  区画図
  • 現地外観写真 溢れる陽光でご家族の笑顔も輝く
  • 現地外観写真 ここから始まる新生活を応援いたします
  • リビング 大きな窓からたっぷりの陽光と風を感じられるリビング
  • リビング 落ち着いた雰囲気のLDKは家族みんなの快適空間
  • その他内観 家族が自然と集まる憩いのスペースになりそう
  • キッチン お料理を効率的に、楽しく!システムキッチン
  • キッチン 料理をしながらご家族との会話を楽しめる対面カウンターキッチン
  • 洗面台・洗面所 収納力と機能性に優れた洗面化粧台
  • その他 清潔感ある洗面化粧室で朝の身支度も快適
  • 浴室 一日の疲れを癒してくれる明るい清潔感のあるバスルーム
  • その他内観 バルコニーが開放感をプラスしてくれる洋室
  • 寝室 収納が充実しているので居住スペースを広々使えます
  • 子供部屋 窓からのやさしい光が心地よいプライベートルーム
  • 玄関 ガラススリットの入った玄関ドアが室内に光を届けてくれます
  • バルコニー 風通しの良いバルコニー
  • その他 ウォークインクローゼットの活用で生活空間スッキリ
  • トイレ トイレは温水洗浄機能付き
  • その他内観 使いやすさを優先したスライド式収納タイプ!
  • その他内観 いつでも清潔なおいしいお水を。一つの水栓で水道水と浄水を使い分け。
  • その他内観 面倒なお片づけは食洗機にお任せ!家事の負担が減って、時間にも気持ちにもゆとりができます。
  • その他内観 浴室涼風暖房換気乾燥機付きなので、お天気が悪い日のお洗濯も安心!
  • その他内観 給湯器リモコンで家事もスムーズに。
  •  図面と異なる場合は現況を優先
お問い合わせ、資料請求、見学のお申し込みはこちらから

電話をかける(携帯・PHS可)
0120-000-973
「ホームページを見た」とお伝え下さい。

お問い合わせ番号をお伝えください
RHS-990994073

内見予約
お問合せ

セールスポイント

特徴
  • フローリング
  • システムキッチン
  • カウンターキッチン
  • 追い焚き
  • シャワー
  • バス・トイレ別
  • シャワートイレ
  • 室内洗濯機置場
  • 浴室乾燥機
  • コンロ二口
  • コンロ三口
  • Wクローゼット
  • 床下収納
  • バルコニー
  • TVドアホン
  • 都市ガス
  • カースペース2台以上
セールスコメント
22条区域 第2種高度地区 下水道処理区域 宅地造成等工事規制区域 


物件概要

採光面 - 構造/階数 木造/地上2階建
建ぺい率 60(%) 容積率 200(%)
駐車場 現況/引渡し 空家/即時
土地権利 所有権 私道負担面積 -

接道状況 接道: 東南 公道 道路幅: 8.9m 用途地域
第一種住居地域
セットバック なし 法令上の制限 -
地目 宅地 地勢
建築確認番号 第25UDI1C建01647号 都市計画 市街化区域
取引態様 仲介
情報更新日 2026年04月15日 次回更新日 2026年04月29日
※各種情報と差異がある場合は現況優先となります

学区情報

小学校区 袖ケ浦市立奈良輪小学校
(千葉県袖ケ浦市)
この学区の他の物件を見る
中学校区 昭和中学校
(千葉県袖ケ浦市)
この学区の他の物件を見る
※物件情報の学区情報について
当サイト物件情報に記載されております通学区域(学区)情報は、国土数値情報ダウンロードサービスが提供する小学校区データ【2016年度】及び中学校区データ【2016年度】を元に加工したものですので、記載情報が現在の学区域と異なる場合がございます。
国土数値情報ダウンロードサービスのWEBサイト上で記述通り、データは必ずしも正確とは言えません。また、通学区域(学区)は毎年見直しの対象となりますので、そちらを踏まえ学区情報は参考としてご活用下さい。
お問い合わせ、資料請求、見学のお申し込みはこちらから

電話をかける(携帯・PHS可)
0120-000-973
「ホームページを見た」とお伝え下さい。

お問い合わせ番号をお伝えください
RHS-990994073

内見予約
お問合せ

この物件でローンシミュレーションする

価格 万円
年利率
ボーナス払い 返済年数
頭金 直接入力する 万円

毎月のご返済額

ボーナス(×年2回)

物件価格

3,680万円
※返済金額はあくまでも目安です。

電話でお問い合わせ
MEマイホーム計画京葉株式会社

電話をかける

0120-000-973

※「ホームページを見た」とお伝えください。
お問い合わせ番号をお伝えください
RHS-990994073

お問い合わせ

お問い合わせ内容
お問合せ内容必須
【備考欄】
詳細な見学ご希望時間、ご質問、ご希望条件などがございましたらお聞かせ下さい。
(2000文字以内)
お客様情報
お名前必須
連絡先必須 メールアドレス

※ご記入いただいたメールアドレス宛てに、お問合せ内容の確認メールをお送りいたします。
※Yahoo!メールなどのフリーメールをご利用の場合、迷惑メールフォルダに入る場合があります。
 迷惑メールのフォルダ・設定等をご確認下さい。
電話番号
FAX(任意)
※ご入力いただいたお客さまの個人情報は、「個人情報の取扱いについて」に基づき適正に取り扱います。必ずお読みになり、同意の上お問い合わせください。

お気軽にお問い合わせください

0120-000-973
物件番号 RHS-990994073
※「ホームページを見た」
とお伝え下さい。