野田市七光台 第19 新築一戸建て 全3棟 千葉県野田市七光台 |2,680万円の新築一戸建て|分譲住宅や新築物件|MEマイホーム計画京葉株式会社

定休日:水曜 営業時間:9:00~

0120-000-973

会員登録
TOPページ >
物件検索 >
新築一戸建て
>
野田市
>
東武野田線
>
野田市七光台 第19 新築一戸建て 全3棟

新築一戸建て

野田市七光台 第19 新築一戸建て 全3棟
お気に入り
価格 2,680万円 ローンシミュレーション
所在地 千葉県野田市七光台
この地域周辺の物件を見る
土地面積 171.85m² (51.98坪) 建物面積 95.58u
築年月 2026年2月築 間取り 4LDK (-)
交通
東武野田線 七光台 徒歩16分
東武野田線 川間 徒歩23分
ここがおすすめ

-


  • 現地外観写真 たっぷりの陽光と心地よい風が舞い込む住まい
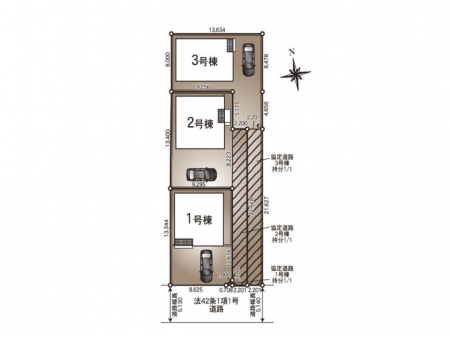
  •  区画図
  • 現地外観写真 溢れる陽光でご家族の笑顔も輝く
  • 現地外観写真 ここから始まる新生活を応援いたします
  • リビング 家族の和やかな会話が聞こえてきそう。開放感のあるリビングです ※家具はCGです
  • リビング 明るい陽光が注ぎ、寛ぎの雰囲気に満たされるリビング・ダイニング。
  • その他内観 家族の笑顔が自然と生まれてくる、そんな雰囲気のダイニングに仕上がっています。
  • キッチン 毎日使うキッチンだから、使いやすさ&お手入れのしやすさにこだわりました。
  • キッチン カウンター越しに楽しいおしゃべり。いつものお料理がもっと美味しくなりそうですね
  • 洗面台・洗面所 スタイリングに便利な三面鏡、ミラーキャビネットで細かい物スッキリ
  • その他 ゆとりの洗面スペースで朝の身支度もラクラク
  • 浴室 落ち着いた雰囲気でゆっくり寛げるバスルーム
  • その他内観 やさしい光がさしこむ居室はしっかり収納付き
  • 寝室 バルコニーが明るさと開放感を演出!朝スッキリと目覚められそうですね。
  • その他内観 柔らかい畳の空間は、お子様の遊び場や来客時のおもてなしの場所として重宝します。
  • 玄関 ガラススリットの入った玄関ドアが室内に光を届けてくれます
  • バルコニー 広々バルコニーでお洗濯物が気持ちよく乾きます。
  • 収納 毎日着る衣類や荷物などの収納に便利なクローゼット付きです。
  • トイレ 清潔感のある白を基調とした落ち着ける空間
  • その他内観 広々としたシンクでお料理やお皿洗いもラクラク快適に!
  • その他内観 ガスコンロはSiセンサー搭載。火力調節や焦げ付き・消し忘れも防いでくれます。
  • その他内観 基本的なお手入れはフィルターのみ!お手入れのしやすさも魅力です。
  • その他内観 使いやすさを優先したスライド式収納タイプ!
  • その他内観 床下収納付き!日用品・非常用品の収納にも大活躍。
  •  間取り
  • 周辺環境 駅 1280m 七光台駅
  • 周辺環境 小学校 260m 野田市立七光台小学校
  • 周辺環境 中学校 550m 野田市立北部中学校
  • 周辺環境 幼稚園・保育園 1800m 月影幼稚園
  • 周辺環境 病院 3022m 野田病院
お問い合わせ、資料請求、見学のお申し込みはこちらから

電話をかける(携帯・PHS可)
0120-000-973
「ホームページを見た」とお伝え下さい。

お問い合わせ番号をお伝えください
RHS-990982612

内見予約
お問合せ

セールスポイント

特徴
  • フローリング
  • システムキッチン
  • カウンターキッチン
  • シャンプードレッサー
  • 追い焚き
  • シャワー
  • バス・トイレ別
  • シャワートイレ
  • 室内洗濯機置場
  • 浴室乾燥機
  • コンロ三口
  • 床下収納
  • バルコニー
  • TVドアホン
セールスコメント
 


物件概要

採光面 - 構造/階数 木造/地上2階建
建ぺい率 60(%) 容積率 200(%)
駐車場 現況/引渡し 空家/即時
土地権利 所有権 私道負担面積 -

接道状況 接道: 南 2.2m 公道 道路幅: 5.1m 用途地域
工業地域
セットバック なし 法令上の制限 -
地目 地勢 平坦
建築確認番号 第25UDI1W建08029号 都市計画 市街化区域
取引態様 仲介
情報更新日 2026年04月15日 次回更新日 2026年04月29日
※各種情報と差異がある場合は現況優先となります

学区情報

小学校区 野田市立七光台小学校
(千葉県野田市)
この学区の他の物件を見る
中学校区 北部中学校
(千葉県野田市)
この学区の他の物件を見る
※物件情報の学区情報について
当サイト物件情報に記載されております通学区域(学区)情報は、国土数値情報ダウンロードサービスが提供する小学校区データ【2016年度】及び中学校区データ【2016年度】を元に加工したものですので、記載情報が現在の学区域と異なる場合がございます。
国土数値情報ダウンロードサービスのWEBサイト上で記述通り、データは必ずしも正確とは言えません。また、通学区域(学区)は毎年見直しの対象となりますので、そちらを踏まえ学区情報は参考としてご活用下さい。
お問い合わせ、資料請求、見学のお申し込みはこちらから

電話をかける(携帯・PHS可)
0120-000-973
「ホームページを見た」とお伝え下さい。

お問い合わせ番号をお伝えください
RHS-990982612

内見予約
お問合せ

この物件でローンシミュレーションする

価格 万円
年利率
ボーナス払い 返済年数
頭金 直接入力する 万円

毎月のご返済額

ボーナス(×年2回)

物件価格

2,680万円
※返済金額はあくまでも目安です。

こちらの物件は複数区画の分譲地・他にも販売中のマンションがあります。

野田市七光台
2580万円〜2780万円

電話でお問い合わせ
MEマイホーム計画京葉株式会社

電話をかける

0120-000-973

※「ホームページを見た」とお伝えください。
お問い合わせ番号をお伝えください
RHS-990982612

お問い合わせ

お問い合わせ内容
お問合せ内容必須
【備考欄】
詳細な見学ご希望時間、ご質問、ご希望条件などがございましたらお聞かせ下さい。
(2000文字以内)
お客様情報
お名前必須
連絡先必須 メールアドレス

※ご記入いただいたメールアドレス宛てに、お問合せ内容の確認メールをお送りいたします。
※Yahoo!メールなどのフリーメールをご利用の場合、迷惑メールフォルダに入る場合があります。
 迷惑メールのフォルダ・設定等をご確認下さい。
電話番号
FAX(任意)
※ご入力いただいたお客さまの個人情報は、「個人情報の取扱いについて」に基づき適正に取り扱います。必ずお読みになり、同意の上お問い合わせください。

お気軽にお問い合わせください

0120-000-973
物件番号 RHS-990982612
※「ホームページを見た」
とお伝え下さい。