市川市北国分2丁目の分譲住宅一覧|東京・千葉の不動産のことならMEマイホーム計画京葉

定休日:水曜 営業時間:9:00~

0120-000-973

会員登録
2件中1〜2件を表示
  • 1
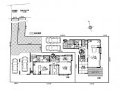
新築一戸建て
価格 5,180万円 
所在地 市川市北国分2丁目
交通 北総鉄道 北国分駅 徒歩12分
建物面積 121.77m2 土地面積 219.43m2

新築一戸建て
価格 5,180万円 
所在地 市川市北国分2丁目
交通 北総鉄道 北国分駅 徒歩12分
建物面積 109.23m2 土地面積 224.72m2

2件中1〜2件を表示
  • 1